Södra Förmansvägen 6 · 3000 m²

Mitt i Sundsvalls största handelsplats, Birsta (vid IKEA)!
TILLTRÄDE Enl överenskommelse
AVTAL

OMGIVNING & KOMMUNIKATION

Area3000 m²
TillträdeEnl överenskommelse

Mitt i Sundsvalls största handelsplats, Birsta (vid IKEA)!

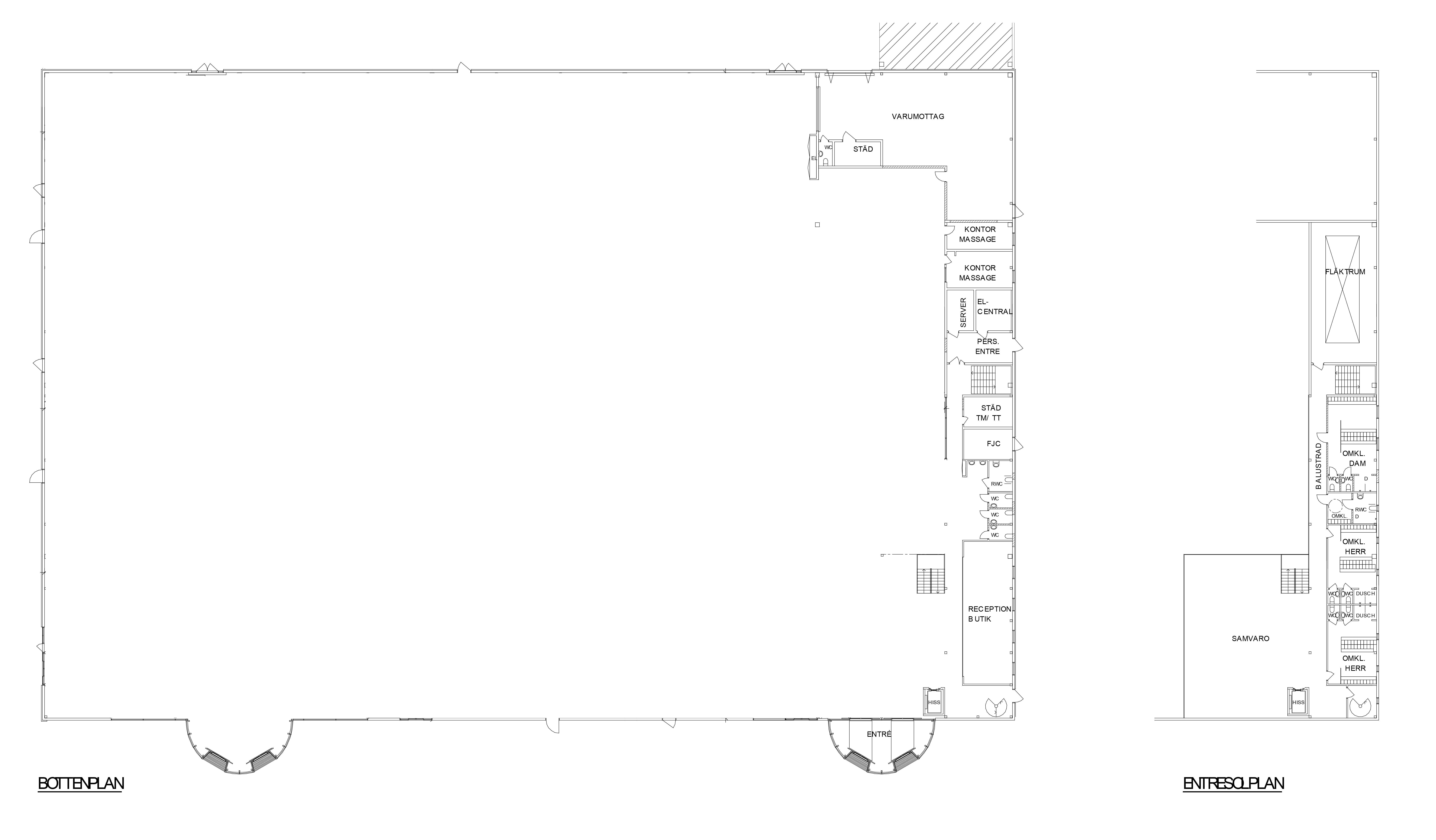
Nu finns möjlighet att finnas mitt i Birsta där du har flera starka flödesdrivande grannar som IKEA, Plantagen, MIO. Med högt i tak och goda parkeringsmöjligheter är denna yta perfekt för exempelvis bilhall eller byggvaruhus. Det är en modern lokal med god ventilation som kan anpassas till den verksamhet man önskar ha. Flexibel yta från 3000-12000 kvm.

Bussar:Flertalet bussar går till Birsta Handelsområde, det tar ca 15 minuter att ta sig med buss från centrala Sundsvall till Birsta

KONTAKTPERSON

Sofia Petzelius

Head of Leasing Retail, Partner

073-626 26 54

sofia@newproperty.se